SOLD!
Welcome to the Lake! ENJOY!!
Welcome to
S733 E. Redstone Drive~Lake
Redstone~Wisconsin Lake
$479,900
Check
Out The Video Here!
Click
the Projector for a Slide Show!
 A super relaxing & really enjoyable 2BR/1.5BA
waterfront home! A nice level lot to the water.
 
 
Nicely planned kitchen offers a snack bar & plenty of cabinets. Free
flowing floor plan allows the cook to be part of the conversation!

 
Inviting living room with a large picture window so you can see the lake fun!
\ 
Two ample sized bedrooms. One even has a lake view!
 
Main level bath with a tub/shower combination, linen closet & provisions for
a stack washer & dryer if you prefer to have your laundry room on the first
floor.
 
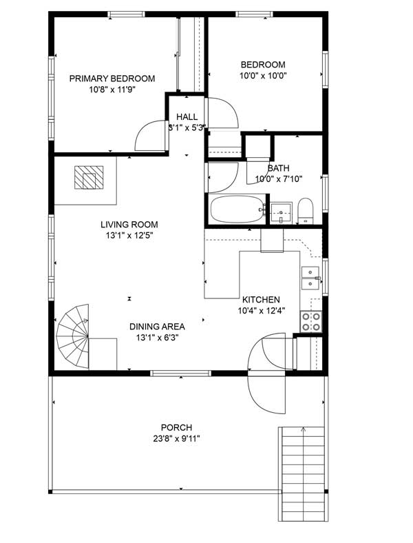
Main Level Floor Plans

 
 
The lower level boasts a grand family/recreation area that walks out to the
lake! A nice "northwoods" feeling here.

Lower level guest bath
 
Lower Level Floor Plans
 
Relax on the covered deck...even when it's raining (or snowing)! Easy to see the
water fun from the deck!
Super-Sized garage...you won't run out of room for your STUFF here!

Shoreline Views~Super Easy Docking!

NO backyard neighbors...here's the view from the streetside!
 
 
 
Welcome To The Lake!
Printable
Brochure
You Will Need Adobe Acrobat Reader to view/print this
brochure
Click Below to Download Adobe Acrobat Reader--FREE!!!

Offshore Lots For Sale
Waterfront
Lots For Sale
Waterfront Homes
For Sale
Offshore
Homes For Sale
Questions?
E-Mail The JulieSells Team
"Your
Friend In Real Estate"
Julie Alibrando, GRI, Broker-Associate
Licensed In Wisconsin
Certified Residential Specialist
RE/MAX
Preferred
100 E. Main Street, P.O. Box 56
LaValle, WI 53941
608-985-8484 LaValle Office
608-963-1093 Text Us!
608-524-0600 Office-Reedsburg
©Copyright
2001-2002-2003-2004-2005-2006-2007-2008-2009-2010-2011-2012-2013-2014-2015-2016-2017-2018-2019-2020-2021-2022-2023-2024-2025
Designed & Maintained by Julie Alibrando, JulieSells LLC all
rights reserved
|